ENCUENTRA TU PLANO POR LAS DIMENSIONES DEL TERRENO O TU ESPACIO (metros x metros):

ENCUENTRA TU PLANO POR EL TAMAÑO TOTAL DE LA OBRA EN M2

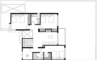
PLANOS DE CASAS PARA 300 METROS CUADRADOS

Aqui algunas alternativas de distribución para casas con 300 m2 aproximadamente. Son dos tipos de casas, cada una con 2 niveles (piso1 y piso 2) y 250m2 y 231m2 de área costruída, el resto es jardín. Cuenta con 4 dormitorios, 4 baños, sala de estar y área de servicio.


Se trata del Condominio Venecia y el segundo es el Condominio San Sebastián en el Sol de La Molina Lima Perú. Estan bellas casas estan en venta por el Grupo Imagina y pueden ver más tipos de casas en condominio en imagina.com.pe.
Fuente: Imagina.com.pe

32 comentarios:

  1. carlos C. doze_eyes@hotmail.com19 de enero de 2011 a las 17:58

    hola quisiera ayuda con un plano, tengo un terreno de 330mt2 de frente tiene 15mt y de fondo 22mt ubicado en ancon ya que lo quisiera con un local para abarrotes en la parte derecha y el resto para una vivienda con jardin.

    de antemano muchas gracias

    ResponderEliminar
  2. Hola me gustaria, si pueden poner planos para una casa de un solo piso, tengo un lote de 300m2 y somos una pareja de jovenes creo q seria con 2 cuartos a lo mucho sala tv, sala d visitas, baño y medio.
    Muchas Gracias
    Q Dios le bendiga

    ResponderEliminar
  3. Hola Anónimo, cuales son las dimensiones de tu terreno? es decir de cuantos m. x cuanto?

    ResponderEliminar
  4. hola, me podrían ayudar con un plano , tengo terreno de 617m2, pero es en forma de abanico, con un frente de 32m y del lado izquierdo tiene17m y del lado derecho tiene25m, quisiera que fuera alrededor de 300m2 a 350 maximo de construcción pero con un cuarto en el piso inferior y 4 en el superior y con la lavandería en el piso superior y bueno que si es posible en el piso inferior diera hacia el patio el comedor ( integrado a la cocina), una estancia y la sala. Y si no es mucho pedir un cto de servicio en el primer piso también.
    Me gustaría que los cuartos fueran pequeños excepto uno de los cuartos del segundo piso recámara principal y si se puede que la recámara del primer piso también fuera un poco amplia. Gracias

    ResponderEliminar
  5. Hola alguien me podria ayudar tengo la idea de un surf house para 30 personas con 4 habitaciones cuadruples, 3 dobles, 2 sencillas matrimonial, i sencilla king size el terreno es de 20 x 17 ´podrian darme la idea de un plano

    ResponderEliminar
  6. me podrian proporcionar cualquiera de esos dos planos en formato dwg lo necesitaba ya que en la facultad de arquitectura me pidieron que consiguiera uno para hacer los planos constructivos de un proyeto de entre 200 y 250 m2 de construccion dejo mi mail un saludo y espero una respuesta favorable o no
    anglo_span@hotmail.com

    atte. eduardo

    ResponderEliminar
  7. hola amigos,quisiera que me ayuden tengo un terreno de 10 x 25 y queda en esquina ayudenme a encontrar un bonito plano con cochera,una pequeña pisina,cuatro cuartos,ginnasio,salon de cine y cuarto de empleada

    ResponderEliminar
  8. hola: he visto planos muy interesantes.pero me gustaria ver un diseño de unos de 20m x 20m

    ResponderEliminar
  9. me apoyan con plano para una casa, terreno de 500 mts 20 x 25, al menos debe tener4 habitaciones

    ResponderEliminar
  10. Hola que tal, me gustaria apoyarte soy de mexico, donde es tu residencia.
    Adjunto mi correo por si quieress que te pueda apoyar.

    arq.tectura@gmail.com

    Saludos

    ResponderEliminar
  11. hola soy vale ¡ tengo un terreno de 10 x 25 mts y quisiera una idea para poder construir mi casa. Algo como un plano como para tener una referencia o idea. muchas gracias¡

    ResponderEliminar
  12. HOLA SOY JOSEPH TENGO UN TERRENO DE 3000 METROS CUADRADOS QUISIERA HACER UN RECREO ME PODRIAS DAR ALGUNAS IDEAS PARA DARLE UNA IMAGEN LLAMATIVA

    ResponderEliminar
  13. Hola que tal mi nombre es willian y necesito ideas para construir una casa en un terreno de 15m× 20m !! Les agradecería mucho su ayuda!! Willpggarcia84@gmail.com ese es mi email

    ResponderEliminar
  14. hola soy alejandro y tengo un terreno de 9 mts x 14 mts y es esquinero quisiera que me colaborre con buen plano para una casa de dos pisos. mi correo es luisalejandro_1009@hotmail.com le agradezco su colaboracion y se que usted tiene unos planos expectaculares

    ResponderEliminar
  15. buenas dias me llamo Soledad tengo un terreno de 110 m2 pero es de 8 mts x 13 mts pero quisiera utilizar los 2 pisos yo con todo mis comodidates y el tercer piso alquilarlo o sea en el tercer piso quiero que tenga todo mi correo es marisol21_31@hotmail.com, espero tu pronta respuesta

    ResponderEliminar
  16. hola tengo un terreno de 300 mtrs con una inclinacion de 45 grados quisiera q m den algunas recomendaciones ya que deseo tenga terraza mi correo maite2427@hotmail.com gracias de ante manoa quis

    ResponderEliminar
  17. hola quisiera saber las medida de mi terreno de largo si de frente tiene 10 metros y la superficie del lote es 320 ,cual serian las medidas exacta?

    ResponderEliminar
  18. buenas noche somos un grupo de enfermero y tenemos un proyecto para la realización de una casa hogar para abuelos tenemos terrenos para construir que remos empezar con 20 abuelos entre mujeres y hombre quisiera que nos ayudaran en la realización de este proyecto este es mi correo hectoraladejo10@hotmail.com ayúdennos para hacer este sueño realidad gracias

    ResponderEliminar
  19. Hola quisiera un plano para una casa d dos niveles en un terreno de 250 metros cuadrados

    ResponderEliminar
  20. Hola. Temgo un terreno de 24m de frente por 60m de fondo. Quisiera algunas ideas para una casa. Somos 3 integrantes. Mi idea es que sea de una planta sola. Desde ya muchas gracias

    ResponderEliminar
  21. HOLA BUENAS NOCHES PODRÍAN AYUDARME CON UNOS PLANOS PARA UNA CASA DE DOS NIVELES MIDE 8 DE FRENTE POR 35 DE FONDO NECESITO TRES RECAMARAS Y QUE TENGA JARDÍN

    ResponderEliminar
  22. HOLA BUENAS NOCHE PODRÍAN AYUDARME CON UNOS PLANOS PARA UNA CASA DE DOS PLANTAS CON TRES DORMITORIOS Y QUE TUVIERA JARDÍN MIDE 8 DE FRENTE POR 35 DE FONDO

    ResponderEliminar
  23. En terreno de 10 por 40 construccion de dos niveles la cochera que salga hasta la parte trasera de la casa, donde habrá una piscina. Abajo garage (2 carros, con area de taller/bano) recibidor cocina con desayunador?bar con puertas hacia el patio, living y comedor, bano para visitas. Afuera tambien area de BBQ y una regadera de laberca /bano...arriba Master bedroom con walkin closet, regadera y jacuzzi y otro bano grande para compartir en dos recamaras. Family room y balcon hacia el patio. Terraza hacia el frente.

    ResponderEliminar
  24. holan buenas tarde me podrian colaborar con un plano para una casa de un piso que tenga cuatro habitaciones una con baño privado y un baño auxiliar cocina sala y con pacillo alrededor de dota la casa es para zona rural

    ResponderEliminar
  25. Hola buenas tarde,
    Me podrían colaborar con un plano para una casa restaurant, de 280 metro. Con jardín rustico de i planta.
    Gracias.

    ResponderEliminar
  26. Hola buenas tarde,
    Me podrían colaborar con un plano para una casa restaurant, de 280 metro. Con jardín rustico de i planta.
    Gracias.

    ResponderEliminar
  27. VOY ADQUIRIR UN TERRENO DE 300 M2 EN ANCON ME GUSTARIA UN DISEÑO CON PISCINA Y UNA HABITACIÓN Y UN BAÑO PRIMER PISO Y UN SEGUNDO PISO DE 4 HABITACIONES AMPLIAS 2 BAÑOS. TODO CON UN TONO TIPO PLAYA EN EL PRIMER PISO AMPLIO JARDIN BIEN ILUMINADO COCHERA Y UNA LINDA FACHADA.MI CORREO ES rcornejoavila@hotmail.com. GRACIAS

    ResponderEliminar
  28. Hola Gianina, buen día, tengo un terreno de 8x22m en el cual pienso construir un casa y pues nos podrías ayudar con esto, mas o menos queremos una casa de 2 niveles con terrasas y 5 cuartos (uno principal con terrasa y vista) en el segundo nivel con baños individuales y una sala de star, en el primer nivel todos los servicios con 2 salas (una de star y una de recreación), cocina comedor, lavandería, ss.hh y algo parecido a un mini bar, con cochera, áreas verdes externas e internas y una pequeña piscina, con el frente todo cerrado y solo la entrada de la cochera y la puerta principal, el techo del segundo piso en una forma de 2 aguas o otro estilo.
    Nos podrías colaborar con esto.
    Saludos.

    ResponderEliminar
  29. hola ..tengo un terreno de 12 mtetros x 28 mtros y me gustria si pueden hacerme un plano para hacer duplex para reventas los q mas salgan ,.gracias

    ResponderEliminar
  30. hola tengo un terreno de 300 mtrs de 10x30 quisiera que me ayuden con un plano quiero tres dormitorios sala,comedor,baños de dormitorio y de visitas,cochera para dos carros lavanderia un jardin pequeño en la parte de atras y un cuarto pequeño en la parte de adelante para bodega gracias.mi correo es yussaraneri@gmail.com

    ResponderEliminar
  31. Hola me pueden ayudar con un plano casa tengo un terreno de 300 mts 10 de frente y 30 de fondo me gustaría una construcción de 230 y lo demás de jardín. Gracias nahibi.81@gmail.com

    ResponderEliminar
  32. Buenas tardes, tengo un terreno de 24mts de frente por 15mts de fondo, agradezco si me pueden ayudar con un diseño para una casa. que quede con un patio amplio..

    muchas gracias

    ResponderEliminar

¿Tienes alguna pregunta sobre los planos de casas o departamentos en venta que compartimos? ¿Te gustaría compartir tus ideas o sugerencias? ¡Deja tu comentario! Tu opinión es muy valiosa y ayudará a mejorar el contenido del blog.

Nota: Todos los comentarios son revisados antes de ser publicados para asegurar que cumplan con nuestras normas de participación. Evita el uso de lenguaje ofensivo y asegúrate de que tu comentario esté relacionado con el tema del post.
Gracias por participar.

PLANOS DE CASAS POR DIMENSIONES DEL TERRENO O TU ESPACIO (metros x metros):

VIDEOS Y OTROS TIPOS DE PLANOS