ENCUENTRA TU PLANO POR LAS DIMENSIONES DEL TERRENO O TU ESPACIO (metros x metros):

ENCUENTRA TU PLANO POR EL TAMAÑO TOTAL DE LA OBRA EN M2

PLANO DE CASA DE 162 M2

PLANO DE CASA DE 162 M2

PLANO DE CASA DE 162 M2

PLANO DE CASA DE 162 M2

PLANO DE CASA DE 162 M2
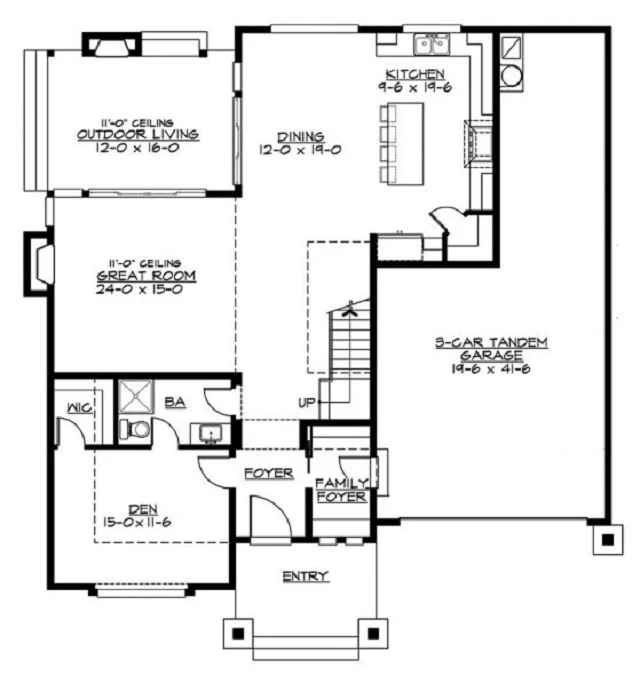
Si estás buscando ideas o consejos para poder diseñar una vivienda o casa, aquí encontraras estupendos diseños de planos de casas, de apartamentos, entre otros planos. Los planos de casas que se muestran te servirán de mucha ayuda para diseñar el tuyo, el plano de casa que a continuación se muestra esta construido en un lote 155 para terrenos planos.

El PLANO DE CASA DE 162 M2 tiene una fachada de estilo clásico, con techos a pendiente con tejado, a alrededores tiene un hermoso jardín que resalta. Lo que tiene es un garaje o cochera para dos automóviles, el ingreso principal a la casa es por el centro se tiene un pequeño hall de distribución, al lado derecho hay un pequeño estudio, continuando se tiene la escalera que da al segundo piso, también se encuentra una amplia sala junto a ello está el comedor que tiene acceso al área de la cocina que es bastante grande, del comedor hay un acceso a la terraza.

En el segundo piso se encuentra el área íntima de la casa, donde están los cinco dormitorios, una de ello es el principal que tiene un walk in closet amplio y los 4 restante son pequeños cada uno con su propio closet y con baños compartidos.


2 comentarios:

  1. Buenas noches gracias por mostrar construcciones hermosas. Po favor me pueden ayudar para construir en un terreno de 10 por 20 con garage, 3 dormitorios baño sala comedor y cocina gracias.

    ResponderEliminar
  2. Buenos días,los planos que muestran me encantan,ustedes serían tan amables de de hacer un plano para un terreno de 6×15 que tenga 3 avitaciones sala comedor y garage. De antemano les agradezco su ayuda. Saludos y exitos en lo que se propongan.

    ResponderEliminar

¿Tienes alguna pregunta sobre los planos de casas o departamentos en venta que compartimos? ¿Te gustaría compartir tus ideas o sugerencias? ¡Deja tu comentario! Tu opinión es muy valiosa y ayudará a mejorar el contenido del blog.

Nota: Todos los comentarios son revisados antes de ser publicados para asegurar que cumplan con nuestras normas de participación. Evita el uso de lenguaje ofensivo y asegúrate de que tu comentario esté relacionado con el tema del post.
Gracias por participar.

PLANOS DE CASAS POR DIMENSIONES DEL TERRENO O TU ESPACIO (metros x metros):

VIDEOS Y OTROS TIPOS DE PLANOS