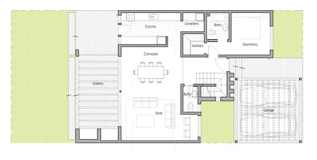
El plano mostrado de la casa está considerado para mejorar el área del terreno, ya que es un espacio que cabe perfectamente. Lo que se logra es que la vivienda tenga los espacios suficientes para el usuario, que es de dos niveles y la distribución es bastante buena como se puede ver en las imágenes mostradas.
El PLANO DE CASA DE 163 M2, tiene en la fachada un estilo moderno, con ventanas grandes que hace que la vivienda sea más ventilada e iluminada naturalmente. Al lado izquierdo está ubicado la cochera que es para dos automóviles, el ingreso a la casa es por el centro, se tiene un pequeño hall de acceso, donde se accede a un dormitorio que está en el primer nivel, también se encuentra el baño y a la escalera que lleva al segundo nivel. En el primer piso se tiene una cocina amplia, un comedor y una sala bastante grande.
En el segundo piso están ubicadas los dormitorios de la casa son tres que son del mismo tamaño, cada uno tiene su propio closet y uno de ellos tiene su propio baño, mientras que las otras dos habitaciones comparten un solo baño.



No hay comentarios:
Publicar un comentario
¿Tienes alguna pregunta sobre los planos de casas o departamentos en venta que compartimos? ¿Te gustaría compartir tus ideas o sugerencias? ¡Deja tu comentario! Tu opinión es muy valiosa y ayudará a mejorar el contenido del blog.
Nota: Todos los comentarios son revisados antes de ser publicados para asegurar que cumplan con nuestras normas de participación. Evita el uso de lenguaje ofensivo y asegúrate de que tu comentario esté relacionado con el tema del post.
Gracias por participar.