Mira el video de cómo es esta casa por dentro en: CASA SIN LIMITES.
Este magnífico proyecto llamado CASA SIN LIMITES o Unlimited Space [ceramic house], es creación del arquitecto Héctor Ruiz-Velázquez, el cual se adapta a las necesidades actuales y a los nuevos hábitos. La cerámica, protagonista indiscutible del espacio, se convertirá en un dinamizador excelente, capaz de ofrecer todas sus cualidades técnicas y estéticas al servicio de un proyecto que explora las tres dimensiones.
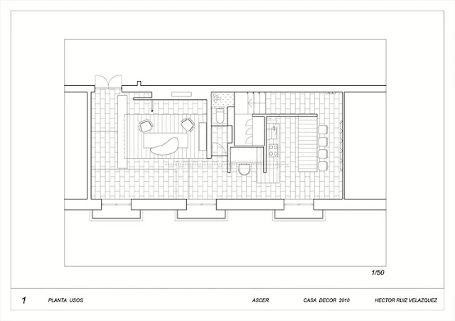
Los planos de esta CASA SIN LIMITES arquitectónicos, muestran la flexibilidad espacial que transforma este hogar de 54m2 en una vivienda de dos plantas, con continuidad de las estancias y libertad de movimiento. La amplitud, la luminosidad y el tiempo fluyen en un espacio multifuncional y con un gran juego de alturas.
El proyecto podría considerarse como una tipología moderna de Living-Lounging donde la libertad de movimientos hace que cada ambiente se complemente de forma funcional con otros, de manera que se enriquezcan mutuamente, ofreciendo como resultado una extraordinaria experiencia espacial.
Mira las interesantes habitaciones de esta casa en: DORMITORIOS EN ALTILLO.









LA CASA SIN LIMITES ES FANTASTICA YA QUE CUBRE TODAS LAS NECESIDADES DE UNA CASA GRANDE, LOS ESPACIOS SON ADECUADOS Y BIEN DISTRIBUIDOS, ESTA PENSADA MUY BIEN
ResponderEliminar