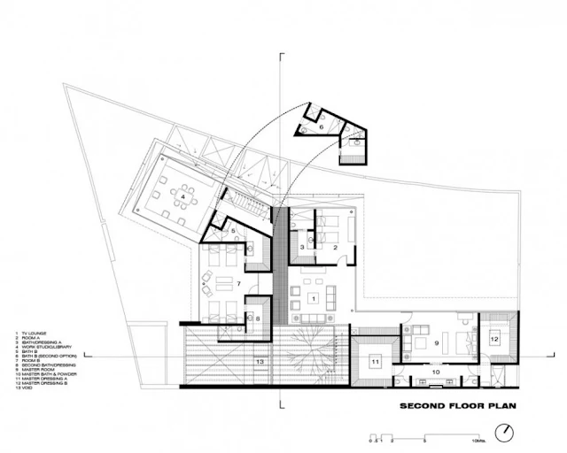
Impresionantes planos de un casa en México por Hernandez Silva Architects designed the Lucke Orozco house in Guadalajara.
El presente video es un análisis arquitectónico de la casa Lucke Orozco diseñada por la firma Hernández Silva, comprende un análisis formal funcional y tecnológico de la vivienda, finalizando con un análisis comparativo del libro "Valores perennes en la arquitectura" de Dirk Borhorst.
Mira la espectacular fachada y fotos de cómo es esta casa por dentro en: FACHADA ESPECTACULAR EN MEXICO.
El presente video es un análisis arquitectónico de la casa Lucke Orozco diseñada por la firma Hernández Silva, comprende un análisis formal funcional y tecnológico de la vivienda, finalizando con un análisis comparativo del libro "Valores perennes en la arquitectura" de Dirk Borhorst.
Mira la espectacular fachada y fotos de cómo es esta casa por dentro en: FACHADA ESPECTACULAR EN MEXICO.






7x1o
ResponderEliminarBusco orientaciones para rentar un departamento en Buenos Aires, gracias por las indicaciones, me serán sumamente valiosas.
ResponderEliminares increible la fachada que tiene la última imagen!! habrá casas en renta de ese nivel? jeje ya imagino su presupuesto.
ResponderEliminar